Проект за митнически склад с жп достъп

ОФЕРТА №:42371 Публикувана:08.02.2026
Обновена на: 19.04.2026
Прегледи: 2254

Цена 650,000 EUR

БИЗНЕС ИНВЕСТИЦИЯ – ПРОЕКТ ЗА МИТНИЧЕСКИ СКЛАД С ЖП ДОСТЪП И СКЛАДИРАНЕ ПОД МИТНИЧЕСКИ КОНТРОЛ.

Тип имот: Бизнес имот / Инвестиционен проект
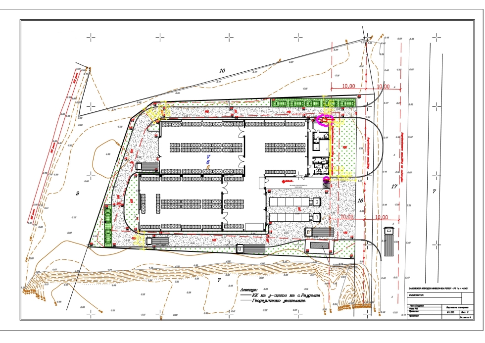
Локация: с. Разделна, общ. Белослав, обл. Варна


ОПИСАНИЕ

Предлагаме за продажба завършен бизнес проект за изграждане на митнически склад под митнически контрол, проектиран съгласно всички действащи нормативни изисквания за получаване на лиценз за митническо складиране веднага след завършване на строителството.

Проектът е разработен като цялостна логистична и складова концепция, а не като стандартен метален склад. Сградата включва складова, административна и контролна част, напълно съобразени с изискванията на Агенция „Митници“.


СУПЕР БИЗНЕС ПРЕДИМСТВО – ЖЕЛЕЗОПЪТЕН ДОСТЪП

Към имота прилягат железопътни линии, които могат да бъдат използвани за директно разтоварване и товарене на стоки във вагони, включително под митнически контрол.

Това предоставя изключително конкурентно предимство:

  • Възможност за комбиниран транспорт – жп + автомобилен

  • Значително намаляване на логистичните разходи

  • Подходящо за насипни, палетизирани и транзитни товари

  • Идеално за оператори, работещи с големи обеми и международни доставки

Комбинацията от митнически склад + жп инфраструктура е рядко срещан актив с изключително висока добавена стойност.


КЛЮЧОВИ ПРЕДИМСТВА НА ПРОЕКТА

  • Проект за митнически склад, съобразен с всички нормативни изисквания

  • Възможност за лицензиране веднага след Акт 16

  • Не е стандартен метален склад, а пълноценен бизнес проект

  • Обособени складови зони, рампи и контролирани входно-изходни точки

  • Административна сграда за митническо и логистично обслужване

  • Железопътен и автомобилен достъп


ПАРАМЕТРИ НА ИМОТА

  • Урегулиран поземлен имот (УПИ)

  • Площ: 3 141 кв.м

  • Предназначение: складова и търговска дейност

  • Одобрен ПУП

  • Пълен инвестиционен проект

  • Обща РЗП: 1 771,33 кв.м


ЛОКАЦИЯ

  • В близост до Индустриална зона Девня

  • До Пристанище Варна – Запад

  • Отлична връзка с основни транспортни коридори

  • Подходящо за международна логистика и митнически операции


ПОТЕНЦИАЛ ЗА РАЗШИРЯВАНЕ

  • Възможност за закупуване на съседни парцели до общо 12 дка

  • Подходящо за изграждане на цялостен логистичен или индустриален комплекс

 

 

За контакт


EMAIL
+359 88 565 6458
Съобщение

Новини

Проф. д.ик.н. Петър...

на 30.05.2019

По време на днешното 38-мо редовно общо събрание на...

Ръстът в цените на...

на 19.04.2019

Наблюдава се лек спад в обема на сделките в сектора на...

Българинът трябва да се...

на 18.04.2019

Един от най-успешните мениджъри в световен мащаб –...

Клиентите на ИПС 7 за...

на 30.01.2019

В последните години монтирането на проследяващи...

"Идео Груп" за...

на 17.01.2019

През последните години все по-популярни, особено сред...

Ирина Белчева- една от...

на 14.01.2019

Мисис България, Бизнес Дама, Енергиен експерт, Инженер,...

KPD.BG- бизнес порталът за...

на 10.01.2019

Хиляди обяви и десетки нови потребители всеки ден....

"ИПС 7"- спокойствие и...

на 04.01.2019

Празниците минаха, а с това интереса към предлаганите...

Виж всички